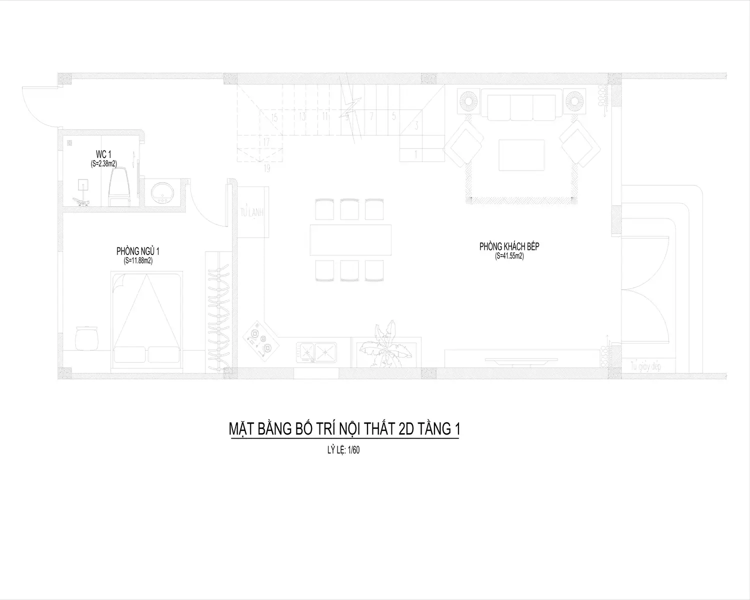
Mặt bằng công năng và hồ sơ bản vẽ nhà 3 tầng
- Tầng 1: Phòng khách, 1 phòng ngủ, bếp+ăn, wc và cầu thang
- Tầng 2: 2 Phòng ngủ ,wc và cầu thang
- Tầng 3: 1 phòng thờ, sân phơi
- >> Chi tiết xem mặt bằng



-
Hồ sơ bản vẽ bao gồm
- Phối cảnh 3D ngoại thất mặt tiền góc nhìn chính, phụ
- Mặt bằng bố trí nội thất các tầng
- Mặt bằng kỹ thuật thi công các tầng.
- Các mặt đứng kỹ thuật thi công
- Các mặt cắt kỹ thuật thi công.
- Mặt bằng lát sàn các tầng
- Các bản vẽ chi tiết các phòng tắm, vệ sinh
- Các bản vẽ chi tiết cầu thang
- Các bản vẽ chi tiết hệ thống cửa đi, cửa sổ, vách kính
- Các bản vẽ chi tiết hệ thống ban công, sảnh
- Các bản vẽ chi tiết trang trí mặt đứng
- Các bản vẽ chi tiết kiến trúc đặc thù từng công trình
- Thuyết minh kết cấu
- Mặt bằng kết cấu móng
- Mặt bằng, mặt cắt chi tiết cấu tạo móng
- Mặt bằng định vị chân cột
- Các bản vẽ thống kê thép móng, cổ cột, bể phốt, bể nước ngầm
- Các bản vẽ chi tiết cột, mặt bằng, mặt cắt các loại cột
- Các bản vẽ thống kê thép cột.
- Mặt bằng kết cấu các tầng.
- Các bản vẽ chi tiết từng cấu kiện dầm
- Mặt bằng bố trí thép sàn các tầng, mái
- Các bản vẽ thống kê thép sàn các tầng
- Các bản vẽ kết cấu cầu thang bộ, thang máy (nếu có)
- Các bản vẽ kết cấu các phần sảnh, mái trang trí (nếu có)
- Các bản vẽ kết cấu các cấu kiện đặc thù, lanh tô cửa
- Mặt bằng cấp điện chiếu sáng các tầng
- Mặt bằng cấp điện các tầng
- Sơ đồ nguyên lý cấp điện toàn nhà
- Mặt bằng cáp thông tin liên lạc các tầng (truyền hình, internet, điện thoại) (nếu có)
- Sơ đồ nguyên lý hệ thống điện nhẹ
- Mặt bằng cấp điện ngoài nhà (sân, cổng, tường rào… nếu có):
- Mặt bằng cấp nước sinh hoạt các tầng
- Mặt bằng thoát nước các tầng, mái
- Các bản vẽ chi tiết cấp thoát nước khu vực tắm, vệ sinh…
Liên hệ với chúng tôi để được tư vấn mua những bản vẽ nhà đẹp, chuẩn xác:
Gmail: phanmemkcad@gmail.com
ĐIện thoại/ Zalo 0975.844.899








Đánh giá
Chưa có đánh giá nào.